插件功能
在SketchUp中可以全自动标注尺寸和任意修改尺寸,所有的尺寸将被记录为标签可以直接输入代码在LayOut里直接调用,功能非常强大,开发的图纸解决方案思路也是别具一格,也弥补了在单纯的LayOut绘制尺寸精确点选的不足,同时也为在SketchUp习惯用场景页面进行标注设计的朋友了提供了极大的便利,提高了汇报和出图的效率。本工具为汉化版本,操作简单以上手,开启无卡顿,运行流畅。关于LayOut的Ruby控制台如何开启,则在文章最后有演示视频,本站经过测试SketchUp2019安装后,在SketchUp2020-2022三个版本中的LayOut均可正常开启控制台,为方便广大会员本站将未来更新迭代到LayOut2024新版本中,敬请期待!

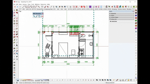
插件界面


使用说明
VBO尺寸工具用户手册
作者:Le Viet Truong,来自 VBO – Sketchup 文档解决方案
VBO Dimensions 是一套工具集,用于在 Trimble SketchUp 中快速放置线性和径向尺寸,也可以在 SketchUp LayOut 程序中放置。
当前版本:2.0.1
获取地址:VBO Store
购买后,您可以在 2 台可同时运行的独立计算机上激活许可证。如果您想添加第三台计算机,您必须使用菜单“扩展/VBO/VBO Dimensions xxx/在此计算机上停用许可证”在另一台计算机上停用 VBO Dimensions
从 SketchUp 2021 开始,在 2 个版本的 SketchUp 上激活插件将算作 2 台计算机。
插件有新更新时,您都会收到一封电子邮件
推荐的系统和软件:
- Windows OS 10 或更高版本
- SketchUp 2019 或更高版本
- 插件仅适用于您的区域设置,使用点(“。””)作为小数点分隔符。
- 仅当您在 SketchUp 中使用 ASCII 字母作为场景名称时,插件才会起作用,不建议使用特殊字符。
- 测试您的 SketchUp 和 LayOut:
- 关闭 LayOut 窗口
- 转到 SketchUp,菜单文件/发送到 LayOut。检查 LayOut 窗口是否打开,扩展菜单是否显示如下图所示
-
- 如果您使用的是 SketchUp 2019,则应尝试使用其他来源重新安装。
- 如果您使用的是 SketchUp 2020 或更高版本,则必须安装 SketchUp 2019(仅安装,无需激活),然后继续使用您的 SketchUp 版本。
- 注意:
- 从 SketchUp 2020 开始,“图层”将被称为“标签”
- 功能:
-
- 放置尺寸:
- 1.1. 选择区域
- 点击工具栏上的第一个,有两种模式可供选择要收集顶点进行测量和创建尺寸的区域:“矩形选择模式”和“多边形选择模式”,按 TAB 键切换。
1.1.a. 矩形选择模式:
单击并拖动光标以创建一个红色矩形。一旦释放鼠标左键,工具的状态将更改为下一个状态。
1.1.b. 多边形选择模式:
单击以添加多边形的顶点,按BACKSPACE键撤消最后一个指向的顶点,按住CTRL键完成。然后,工具的状态将更改为下一个状态。
1.1.c. 会选择哪个实体?:
- 会选择“选定区域”内的所有可见顶点。
- 如果组/组件完全在“选定区域”内,则会选择其边界框的中心点。如果只有部分在内,程序会寻找子组件/组。
- 如果圆弧/圆完全在“选定区域”内,则会选择其中心点。如果只有部分在内,程序会选择“选定区域”内的所有顶点。
1.1.d 选择过滤器:
创建“选定区域”时,将根据以下一些过滤器选择位于该区域内的模型的每个实体:
1.1.d.1. 预选:
如果在使用该工具之前进行了选择,“选定区域”将仅影响选择的实体和子组件/组。如果没有选择,则所有活动实体都将受到影响。
1.1.d.2. 图层/标签状态:
“选定区域”将仅影响当前可见图层/标签上的实体。
1.1.d.3. 图层/标签过滤器字符串:
您还可以通过上下文菜单在“放置尺寸设置”中使用字符串文本。该字符串定义了一个由逗号 (,) 分隔的过滤器列表,它将定义如果实体位于名称包含至少一个过滤器的图层上,则可以选择哪些实体。例如,过滤字符串“doo”将允许这些图层/标签:“7_doors”、“门框”……;过滤字符串“door,fur”将允许这些图层/标签:“doors”、“furniture”、“fur”等等…图层过滤字符串将显示在活动视图的工具提示上。
提示:添加“/cen”可跳过圆弧/圆的中心点,添加“/gc”可跳过组/组件。
1.1.e. 基本正交视图、2D 尺寸、3D 尺寸
1.1.e.1 基本正交视图:
它们是 6 个视图:使用平行相机的顶视图、前视图、后视图、左视图、右视图、底视图。
1.1.e.2 2D 尺寸:
当活动视图为基本视图时创建的尺寸将存储在名为“VBO_Dims-pagename-2D”的图层上,其中 pagename 是当前场景的名称。如果没有场景,插件会要求您创建一个。2D 尺寸将选定区域实体的所有顶点投影到与相机方向垂直的平面上。创建后,2D 尺寸组将被锁定。
1.1.e.3. 3D 尺寸:
当活动视图为非基本视图时,将创建尺寸,尺寸将存储在名为“VBO_Dims-pagename-3D”的图层上,其中 pagename 是当前场景的名称。如果没有场景,插件将要求您创建一个。3D 尺寸的创建方式类似于您使用原生 SketchUp 的尺寸工具,但不连接到 SketchUp 模型实体。
1.1.f. 上下文菜单
1.1.f.1 放置尺寸设置:
这些设置仅适用于 2D 尺寸。
- 尺寸修剪距离:从模型实体的最近点到尺寸延长线的起点的距离,以模型单位表示。
- 多尺寸模式:
- 继续尺寸
+ 继续使用 总的尺寸
- 尺寸线之间的偏移:定义多尺寸模式(如“连续总尺寸”或“基线尺寸”)的尺寸线之间的偏移
- 基线尺寸方向:定义放置基线尺寸的方向。如果为“上 – 右”,尺寸将从所选顶点最左/最底点的第一个点开始。“下 – 左”则相反。
- 标记中心点:定义可以选择或不选择圆弧/圆的中心点。
- 图层过滤器:定义图层过滤器字符串。(参见 1.1.c.3)
1.1.f.2 通过正交基本视图自动隔离 2D/3D 尺寸/通过正交基本视图取消隔离 2D/3D 尺寸
切换基本视图的自动隐藏模式:在基本视图上仅显示 2D 尺寸,在非基本视图上仅显示 3D 尺寸。
1.2. 创建尺寸
1.2.a.点击:
完成“选择区域”后,该工具将等待您点击 2 个点来定义如何放置尺寸。第一个点定义要计算的基点。第二个点定义尺寸线的放置位置(或多尺寸模式的第一个尺寸线 – 参见 1.1.f.t)。从第 1 点到第 2 点的矢量定义尺寸的方向。
1.2.b. 快捷键:
使用该工具时,您可以在状态文本中看到快捷键的指引。在此状态下,如果您要创建 2D 尺寸(活动视图是基本视图),您可以使用 TAB 键选择多尺寸模式(参见 1.1.f.1),使用箭头键选择基线尺寸方向,光标将会改变。
- 编辑尺寸
此功能仅适用于 2D 尺寸。
2.1. 选择要编辑的尺寸
将鼠标悬停在 2D 尺寸上,插件将显示尺寸组的边界和“选定区域”。您可以使用上下文菜单将新设置应用于尺寸组,或单击以重新定义“选定区域”。
2.2. 上下文菜单
2.2.a. 删除 2D 尺寸组
此功能用于删除当前 2D 尺寸组
2.2.b. 复制此尺寸设置
将当前 2D 尺寸组的设置复制到剪贴板。(版本 1.1.0)
2.3.c. 应用尺寸设置
将剪贴板中的设置粘贴到当前 2D 尺寸组。(版本 1.1.0)
2.2.d. 尺寸的 2D 设置。
尺寸修剪距离:从模型实体的最近点到尺寸延长线起点的距离,以模型单位表示。
- 多尺寸模式:
- 继续尺寸
- 继续带总计的尺寸
- 基线尺寸
- 仅总计
- 尺寸线之间的偏移:定义多尺寸模式(如“继续带总计的尺寸”或“基线尺寸”)的尺寸线之间的偏移
- 基线尺寸方向:定义放置基线尺寸的方向。如果是“上 – 右”,尺寸将从所选顶点最左/最底点的第一个点开始。“下 – 左”则相反。
- 标记中心点:定义可以选择或不选择圆弧/圆的中心点。
- 图层过滤器:定义图层过滤器字符串。(参见 1.1.c.3)
- 这些设置将影响当前 2D 尺寸组。
2.2.c. 通过正交基本视图自动隔离 2D/3D 尺寸/通过正交基本视图取消隔离 2D/3D 尺寸
切换基本视图的自动隐藏模式:在基本视图上仅显示 2D 尺寸,在非基本视图上仅显示 3D 尺寸。
2.3. 重新定义“选定区域”。
与工具状态“选择区域”完全相同(参见 1.1)。
3.更新尺寸
此功能仅适用于 2D 尺寸。
单击 VBO Dimensions 工具栏上的“更新尺寸”按钮。程序将根据您当前的状态重新计算场景中的所有 2D 尺寸:选择、图层状态、视图。
- 将尺寸发送到 LayOut
此功能仅适用于 2D 尺寸。
单击 VBO Dimensions 工具栏上的“将尺寸发送到 LayOut”按钮。程序将生成一个字符串代码,供您粘贴(Ctrl V)到 LayOut 的 Ruby 控制台窗口,以便将当前场景的 2D 尺寸放置在 LayOut 的模型场景视图中,并提供多个选项。
4.1. 设置
4.1.a. 与最近对象的偏移:
定义从最近对象开始延伸线的纸张空间位置。
4.1.b. 尺寸线之间的偏移
“定义多尺寸模式的尺寸线之间的偏移(在纸张空间中),例如“继续总尺寸”或“基线尺寸”
4.1.c. 长度单位
定义尺寸文本的长度单位
4.1.d. 抑制尺寸单位
定义尺寸文本是否显示单位
4.1.e.第一条尺寸线偏移
将工具状态“创建尺寸”的第二个点(参见 1.2.a.)平移到图纸空间,并将其定义为第一条尺寸线的放置位置。
第一条尺寸线将放置在您在 4.1.b 中设置的值处,与最近的对象相距一定距离。
4.1.f. 图层设置
- 添加尺寸当前活动图层:尺寸将放置在 LayOut 文档中当前活动的图层上。
- 为尺寸创建/覆盖唯一图层:程序将创建一个名为“|Vdim|modelname|Page|pagename”的图层,其中 modelname 是 skp 文件名,pagename 是获取尺寸的 SketchUp 场景的名称。当您再次运行代码时,新尺寸将覆盖旧尺寸。
4.2. LayOut Ruby 控制台
在某些情况下,LayOut 中的 Ruby 控制台不会显示。如果您是 Mac 用户,则无法使用此功能。如果您使用的是 PC,但仍无法在 LayOut 程序中找到菜单扩展,您可以尝试以下步骤:
- 关闭当前的 LayOut 窗口
- 在 SketchUp 中,尝试菜单扩展/VBO/使用控制台打开 LayOut
- 如果仍然无法在 LayOut 中找到扩展菜单,也许您需要重新安装 SketchUp 并打开所有权限设置。如果您使用的是 SketchUp 2020,请重新安装 2019 版本并让它在那里。然后再次尝试 LayOut 2020。
声明:本站所有插件资源,如无特殊说明或标注,均为本站原创发布。任何个人或组织,在未征得本站同意时,禁止复制、盗用、采集、发布本站内容到任何网站、书籍等各类媒体平台。如若本站内容侵犯了原著者的合法权益,可联系我们进行处理。